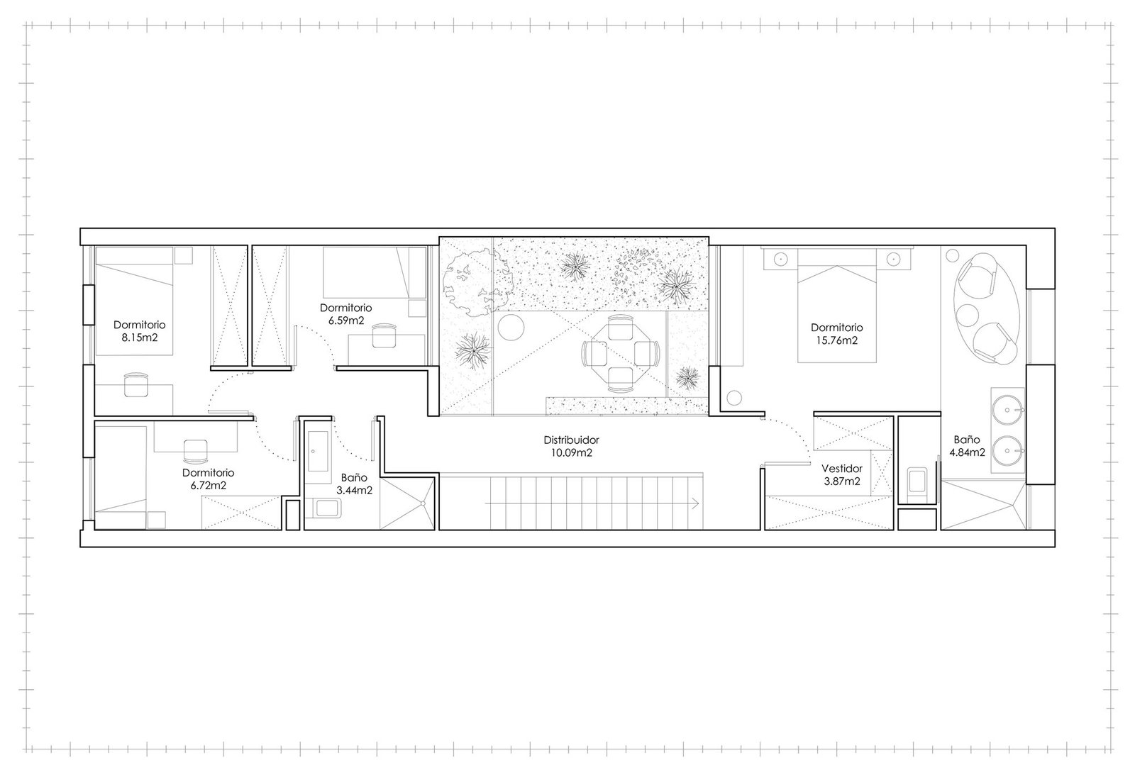
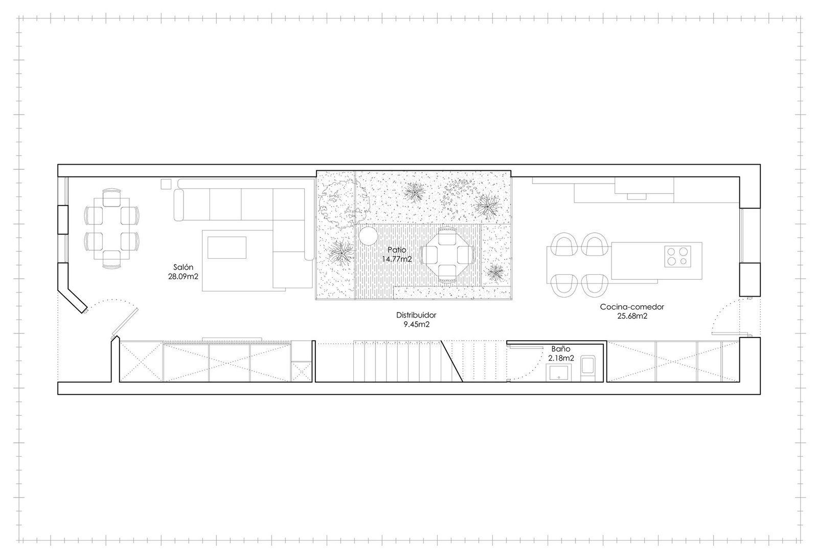
Vivienda San Agustín
Tipología

Vivienda unifamiliar

Superficie construida
170m2
Superficie útil
125m2
Ubicación
Madrid
Estado
En desarrollo

Planos