Ir al contenido
Inicio
Estudio
Proyectos
Contacto
Inicio
Estudio
Proyectos
Contacto
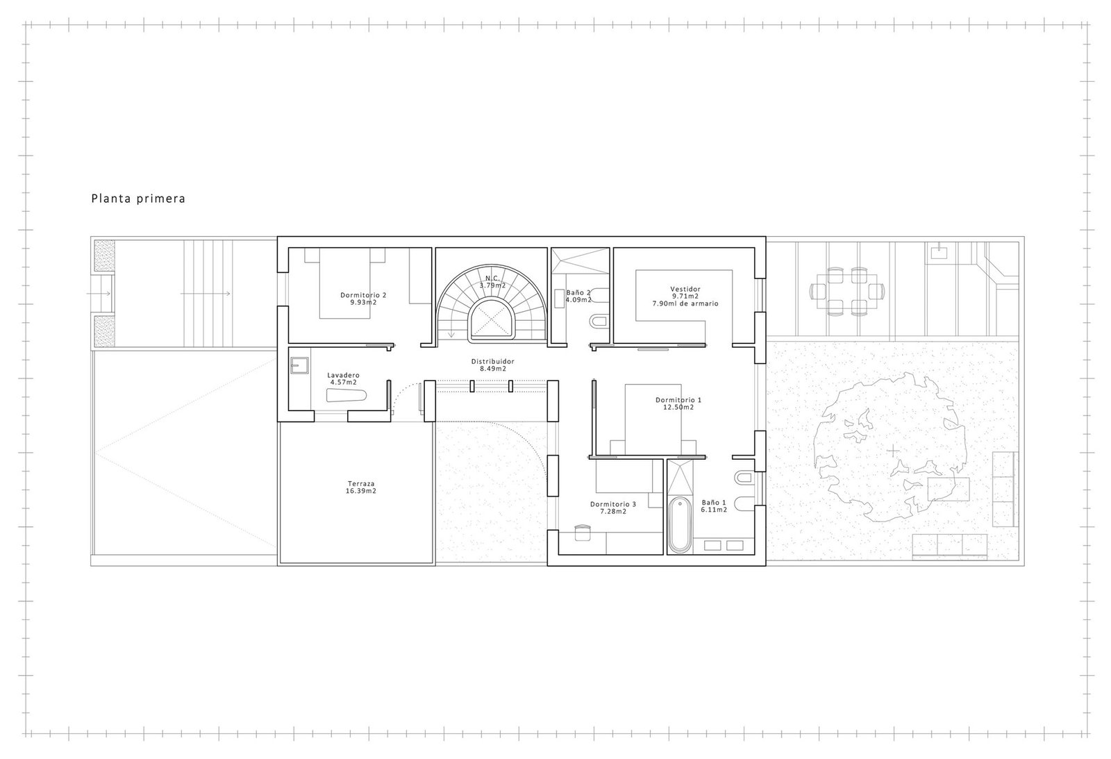
Vivienda Pla de Barta
Obra nueva
Tipología
Vivienda unifamiliar
Superficie construida
241 m2
Superficie útil
199 m2
Ubicación
Sagunto
Estado
En obra
Planos