Ir al contenido
Inicio
Estudio
Proyectos
Contacto
Inicio
Estudio
Proyectos
Contacto
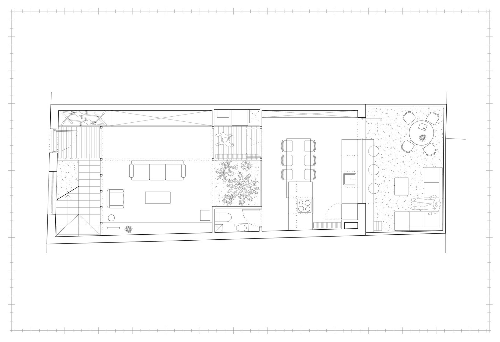
Vivienda Nazaret
Obra nueva
Tipología
Vivienda unifamiliar
Superficie construida
126m2
Superficie útil
88m2
Ubicación
Valencia
Estado
En desarrollo
Planos