Tienda Abades
Tipología

Reforma integral

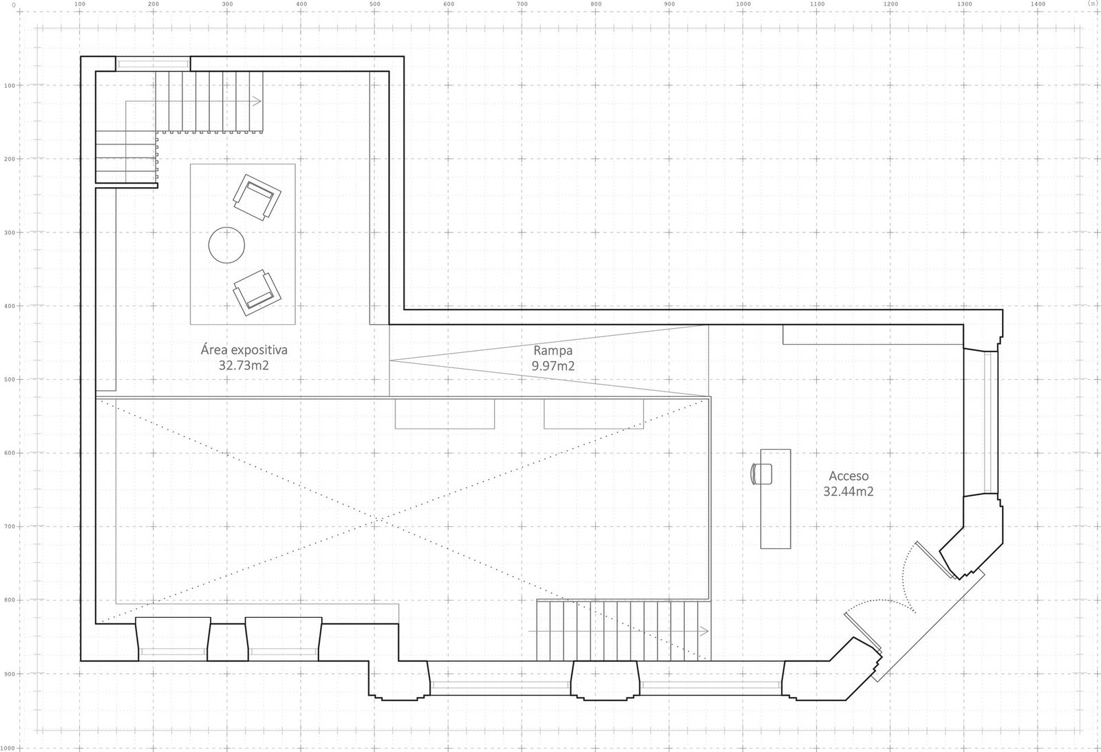
Superficie construida
210m2
Superficie útil
185m2
Ubicación
Madrid
Estado
Finalizada

Planos